Praxen

Umnutzung von Büroeinheiten oder brach liegenden Etagen zur Arztpraxis

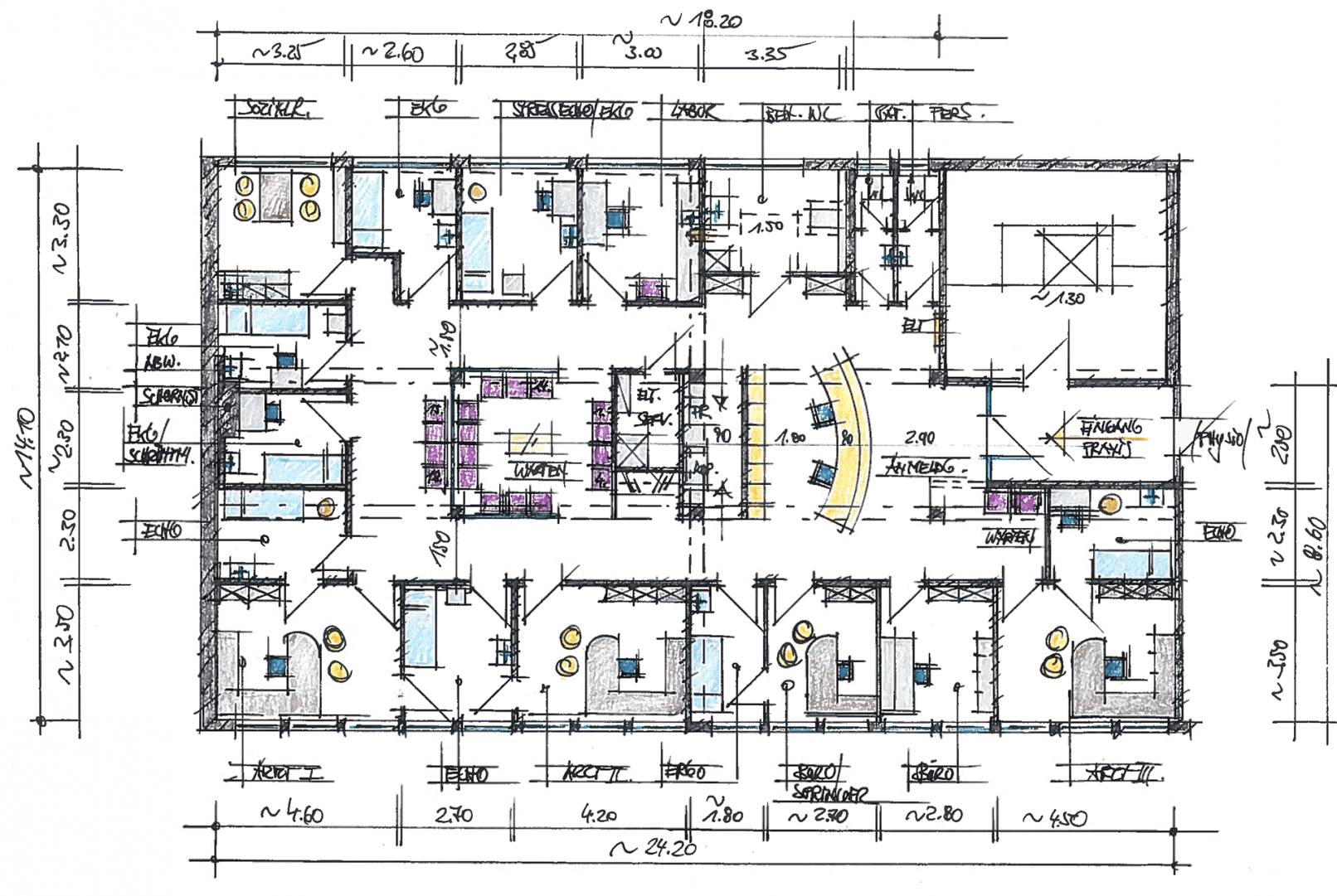
Entwürfe zur Umnutzung der Räumlichkeit für eine Kardiologische Praxis bei unterschiedlichsten Raumbedingungen.

Leistungen

  • Entwurfsbeispiele zur Umnutzung in eine Kardiologische Arztpraxis.

Zeitraum

  • 2016, 2017
Cookie Consent mit Real Cookie Banner